The Old Castle is a fifteenth century fortress occupying a rocky headland overlooking Lachlan Bay on the east side of Loch Fyne. It was the major building of the local clan, the Maclachlans. There has been a castle on the site since at least 1314.
Old Castle Lachlan is of great historic, cultural and architectural significance. Up until the 18th century it was the focal point for a village and 13th century church that stood close by. Coastal paths and signs lead to different parts of the historic settlement, all within easy walking distance and well worth the wander.
The old castle fell to ruin after the Clan of Maclachlan supported Bonnie Prince Charlie in the 1745 Jacobite rebellion. Their chief joined the Prince's army but was killed at the ill fated Battle of Culloden (1746) by a cannon ball.
It is said that when the Maclachlan chief was killed at Culloden, his horse returned alone from the battlefield and swam across the loch to get home. The riderless horse signalled to the clanspeople that their chief had fallen in battle. The horse would not leave the castle and remained there until it died.
It is also said that shortly after this defeat, an English warship then sailed up the loch and bombarded the castle, although the evidence for this is unclear. Certainly, the castle was abandoned following Culloden and never inhabited again.
Architecture
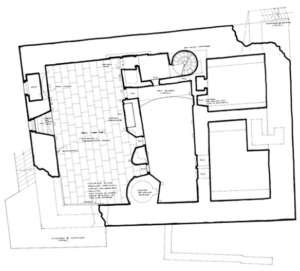
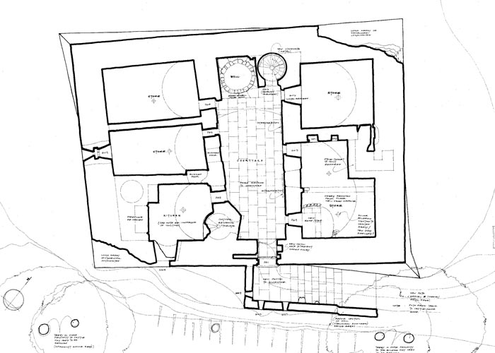
The castle is architecturally important. Its design is almost unique in Scotland. From the outside it looks like the classic square castle a child would draw with battlements and a single entrance. But inside are two houses known as tenements around a central courtyard. The tenements are connected by a small room and circular staircase over a cistern that was used to collect fresh water. Within the courtyard, wooden staircases and galleries used to provide access to rooms on the first floors. The western tenement contained the most important rooms, the Great Hall and Solar, which were used for celebrations.
The castle was built from chlorite schist and sandstone probably quarried locally and there are dressed stone features in doorways, windows and fireplaces. Some of the rooms on the ground floor are vaulted and were probably the kitchen and storerooms. See the internal layout of the castle below.

